Sanierung Hochschulgebäude
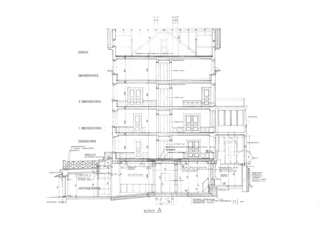
Die ehemalige Villa an der Rämistrasse wurde 1841 als Wohnhaus erbaut. Im Laufe der Jahrhunderte wurde sie vielfach umgebaut und umgenutzt. Seit den 1970er Jahren wird das Gebäude nun von der Universität als Institutsgebäude mit Büros genutzt. Nach einer letzten Sanierung in den 1980er Jahren sind an dem sich im kommunalen Inventar schützenswerter Bauten befindlichen Gebäude erneut dringende Sanierungen und Instandsetzungen nötig. Ziel ist es neben dem sensiblen Umgang mit der bestehenden Substanz einen modernen Komfortstandard für die Nutzenden möglich zu machen und auch die Einhaltung aller Normen sicherzustellen.
Hochschulgebäude, Sanierung
Sanierungskonzept 2026, Realisierung ab 2027
Bauherr: Universität Zürich, Direktion Immobilien und Betrieb

