Chesa Nuschpigna
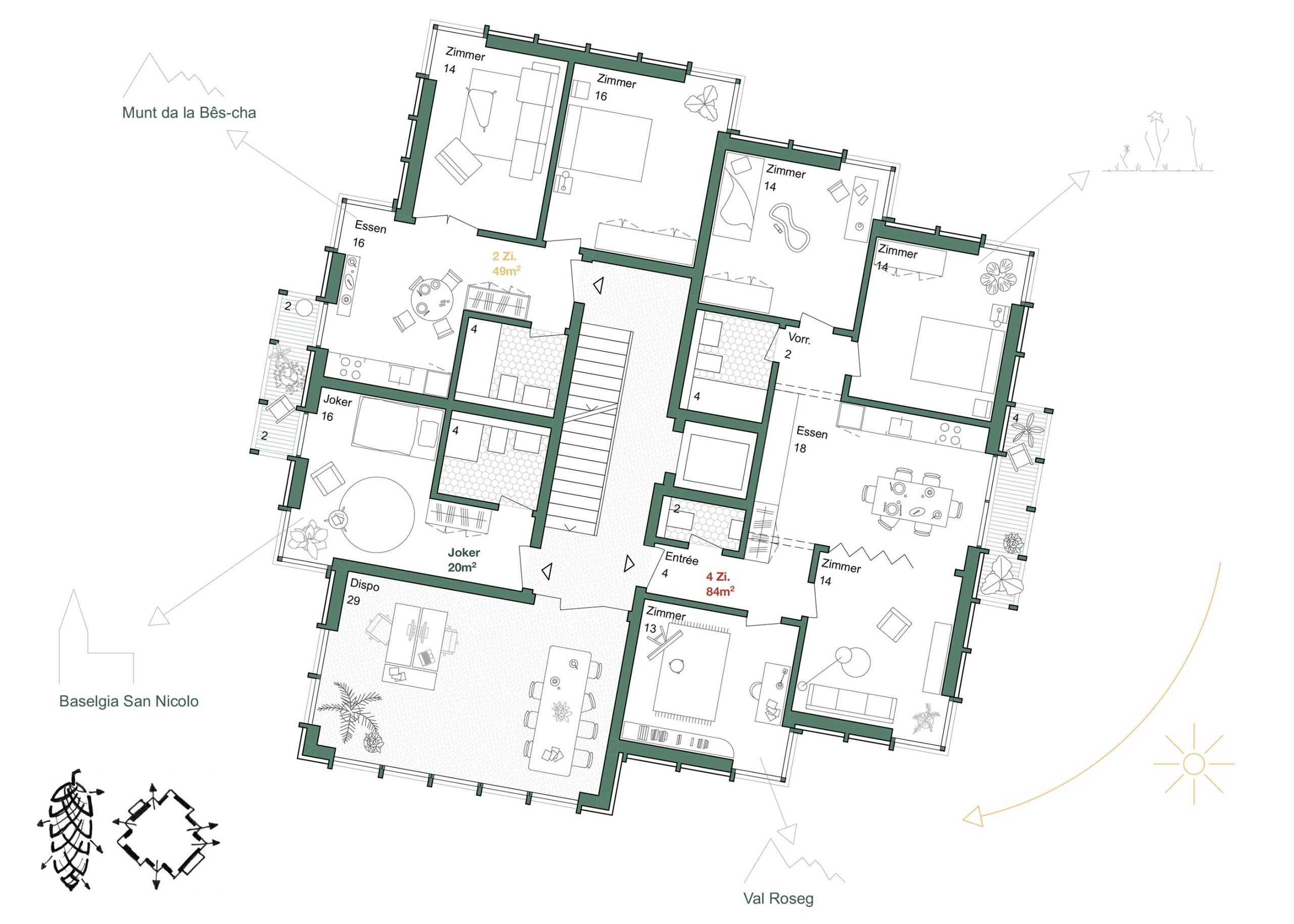
Im Zentrum von Pontresina soll im gemeinnützigen Wohnungsbau ein Mehrfamilienhaus mit acht Wohnungen und zwei Studios für insgesamt rund 30 Personen entstehen.
Die Typologie des Gebäudes verweist auf das Bild eines Tannenzapfens. Diese Anlehnung prägt sowohl die Volumetrie als auch die innere Struktur und Organisation des Volumens – eine feine Drehung, eine rhythmische Wiederholung, eine klare Mitte. So entsteht ein einfaches Haus, das nicht durch technische Komplexität, sondern auch durch architektonische Klarheit und Zurückhaltung nachhaltig ist.
Wettbewerb 2025, Engere Wahl, Würdigung







Im Zentrum von Pontresina soll im gemeinnützigen Wohnungsbau ein Mehrfamilienhaus mit acht Wohnungen und zwei Studios für insgesamt rund 30 Personen entstehen.
Die Typologie des Gebäudes verweist auf das Bild eines Tannenzapfens. Diese Anlehnung prägt sowohl die Volumetrie als auch die innere Struktur und Organisation des Volumens – eine feine Drehung, eine rhythmische Wiederholung, eine klare Mitte. So entsteht ein einfaches Haus, das nicht durch technische Komplexität, sondern auch durch architektonische Klarheit und Zurückhaltung nachhaltig ist.
Wettbewerb 2025, Engere Wahl, Würdigung






